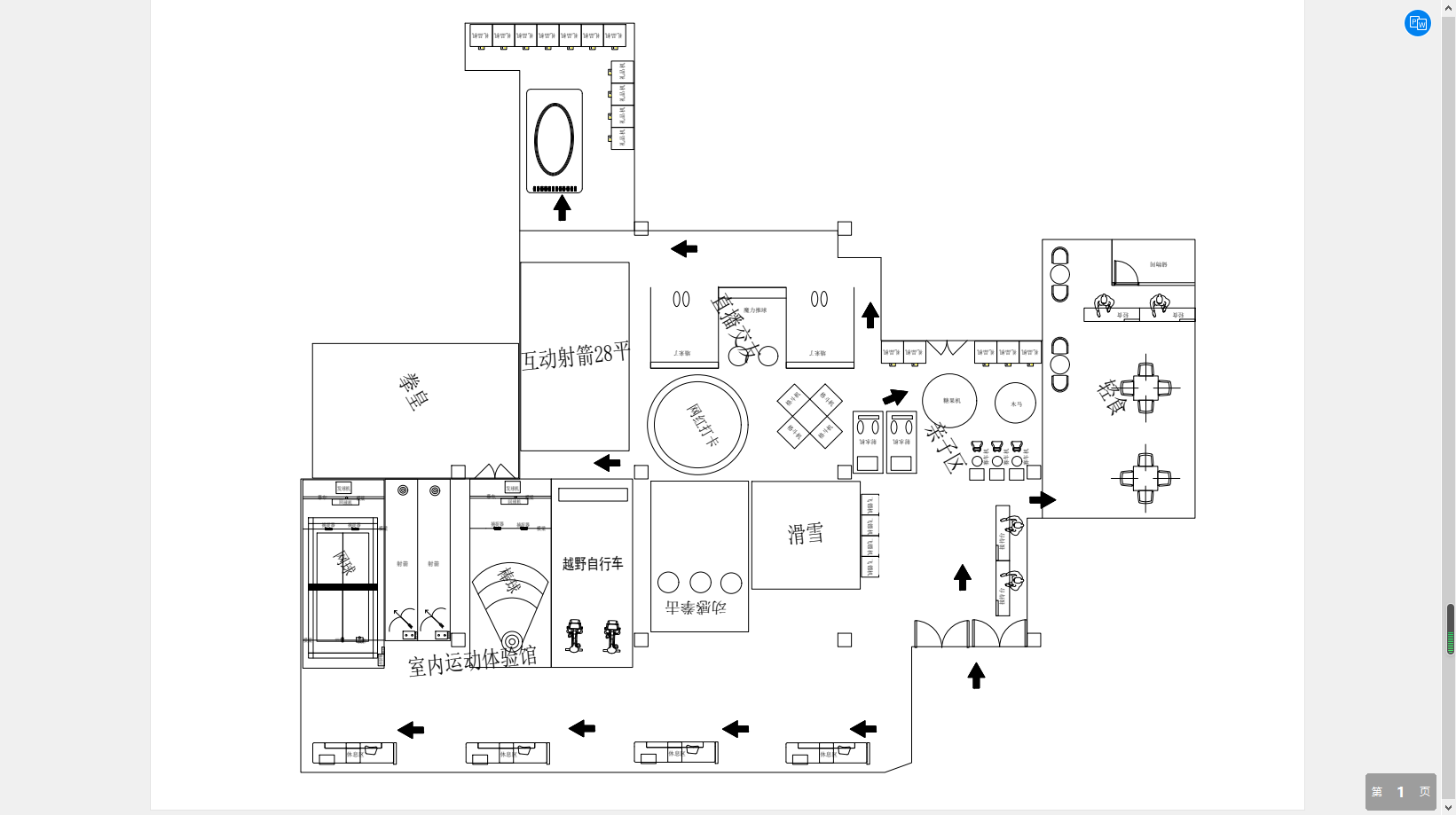
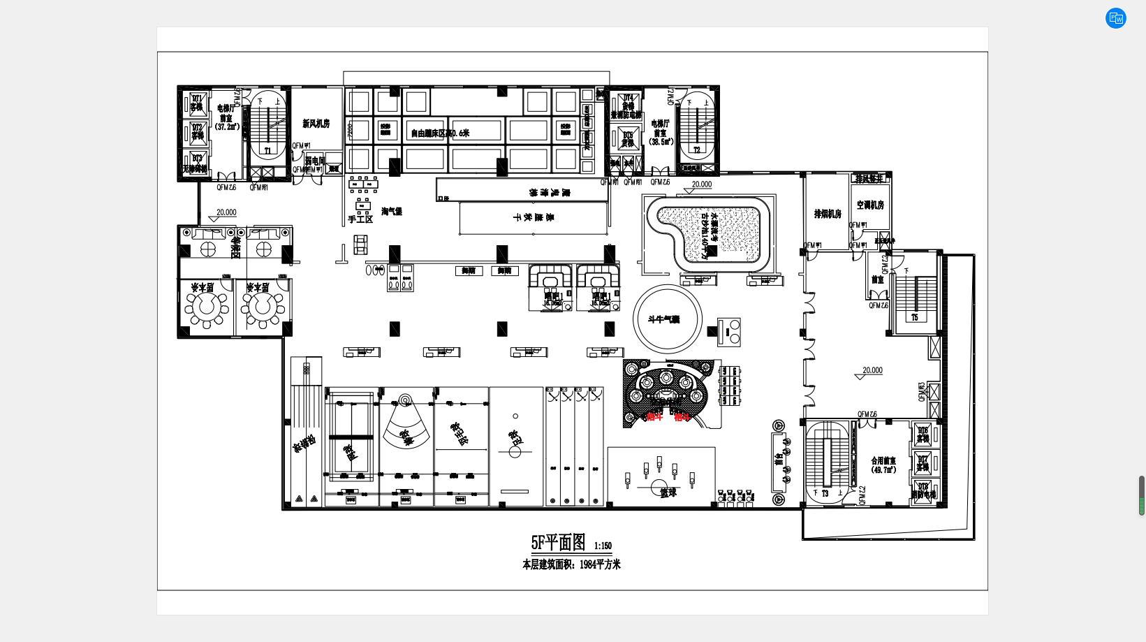
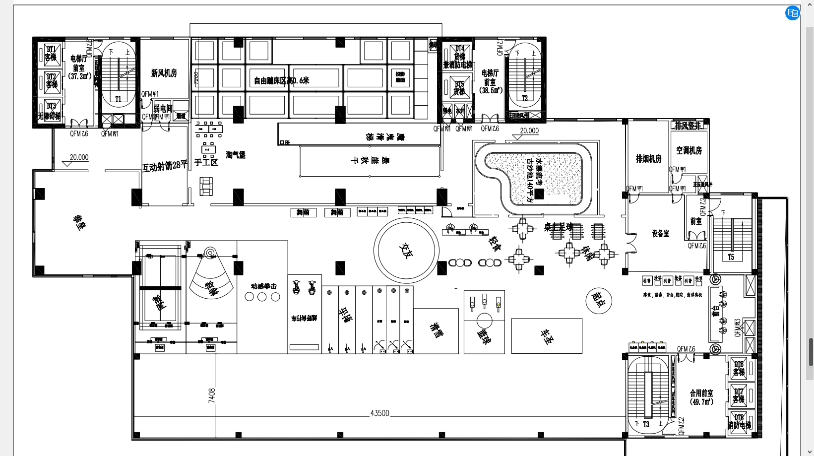
1000方运动体验馆综合体规划设计图
文章来源:数字良嘉
文章分类:公司动态
发布日期:2021-10-26


良嘉体育科技室内运动项目体验馆550平-2000平设计,室内运动棒球、网球、高尔夫、剧本杀、单车、滑雪、保龄球、拳击、射箭、蹦床、网红桥、射击、迷宫等整场输送,可买、可合作、可分期、可租赁。
热门推荐
热门标签
激情乒乓球(1)
轨道影院(1)
密室大闯关(1)
三折幕射击(1)
韩国飞碟(1)
实弹射击(1)
疯狂弹弓(1)
数字羽毛球(1)
数字棒球(1)
数字运动馆(1)
数字壁球(1)
风滑雪越(1)
动感造型(1)
互动足球(1)
动感单车(1)
互动篮球(1)
数字射击(1)
数字高尔夫(1)
成人保龄球(1)
室内运动馆(1)
数字体育馆(1)
数字网球(1)
多人跳舞(1)
互动滚球(1)
全息投影(1)
皮卡秀(1)
红外射击(1)
皇家猎苑之高尔夫(1)
探索空间(1)
国潮高尔夫(1)
想箭就箭(1)
冠军单车(1)
动感拳击(1)
骑马射箭(1)
奥运射击(1)
跃动格子(1)
百发百中(1)
猫捉老鼠(1)
天眼追踪(1)
激光矩阵(1)
红蓝对打球(1)
新款飞镖机(1)
KO嗨皮熊拳击(1)
魔幻桌球(1)
西部猎骑(1)